Ostseenest Fehmarn
Ostseenest Fehmarn

Ostseenest Fehmarn #2

Das Ostseenest #2 verfügt über einen wunderbaren Blick auf die Ostsee, die Hafeneinfahrt und über den Wulfener Strand hinweg bis zur Fehmarnsundbrücke in der Ferne. Unser zweites Ostseenest ist top ausgestattet bis ins Detail. Hier können Sie das Meer nicht nur sehen, sondern auch hören. Genießen Sie die Sonne auf dem Balkon, bis sie am Horizont untergeht, und danach den Sternenhimmel! Von der Haustür aus laufen Sie nur ca. 180 Meter (etwa 2 Minuten) bis zum Südstrand, an dem Sie Ihr eigener Strandkorb bereits erwartet. Einfach wunderbar! Machen Sie sich am besten selbst ein Bild davon, indem Sie sich die Fotogalerie vom Ostseenest #2 anschauen. Weiter unten finden Sie Informationen zur genauen Lage der Wohnung, eine Liste der Ausstattung sowie den Buchungskalender.

 

Lage

 

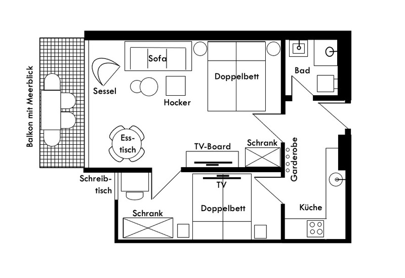
Ausstattung

Das Ostseenest Fehmarn #2 ist bestens ausgestattet für bis zu 4 Personen + Baby. 

 

Balkon

in Süd-West-Ausrichtung mit Blick auf Strand und Meer bis hin zur Fehmarnsundbrücke in der Ferne. Markise, Sonnenschirm, Tisch, vier Stühle. Die Segelboote fahren an Ihnen vorbei, Sie hören die Geräusche des Wassers und genießen bis zum Sonnenuntergang diese unvergleichliche Urlaubsatmosphäre. Wunderbar! Wenn die Sonne versunken ist, können Sie in einer klaren Nacht tausende Sterne am Himmel über sich erkennen.

 

Wohn-/Schlafzimmer

55 Zoll großer Smart-TV mit Internetanschluss (u.a. mit Apps für Amazon Video, Netflix, RTL+), Tivoli-Radio mit Bluetooth, eigenes schnelles Internet per WLAN (bis zu 100 MBit/s ohne Volumenbegrenzung), großzügige Couch mit Hocker, dreh- und kippbarer "Ei-Sessel", Esstisch mit vier Stühlen (Original Arne Jacobsen) und Meerblick. Verdunkelungsvorhänge an den Fenstern. Doppelbett: 160 x 200 cm (zwei Matratzen à 80 x 200 cm), Matratzenschoner, flexible Lattenroste.

Separates Schlafzimmer

55 Zoll großer Smart-TV mit Internetanschluss (u.a. mit Apps für Amazon Video, Netflix, RTL+), kleiner Schreibtisch mit Stuhl und Meerblick, Verdunkelungsvorhang am Fenster. Doppelbett: 160 x 200 cm (zwei Matratzen à 80 x 200 cm), Matratzenschoner, flexible Lattenroste.

 

Küche
Geschirrspüler, Backofen, Kühlschrank mit Gefrierfach, Mikrowelle, Espressomaschine (Nespresso), Milchaufschäumer, Filterkaffeemaschine, 4-Zonen-Induktionskochfeld, Toaster, Wasserkocher und jede Menge Kleinkram. 

Bad
Niedrigschwellige Dusche mit Glastüren, WC, Handtuchheizkörper, Föhn.

 

Für Kinder
finden Sie in der Wohnung stets griffbereit ein Kinderreisebett 60 x 120 cm samt Matratze und einen Kinderhochstuhl vor. Für ein Kleinkind, das im zustellbaren Reisebett schlafen soll, müssen Sie nur Laken und Bettzeug selbst mitbringen, alles andere ist schon da!

 

Strandkorb

Zur Wohnung gehört ein Strandkorb am Südstrand, den Sie mindestens in der Zeit vom 15. Mai bis zum 15. September nutzen können - je nach Wetterlage auch schon früher oder noch später. Der Strandkorb ist abschließbar und liegt im Empfangsbereich des öffentlichen WLAN der Gemeinde Fehmarn.

 

Stellplätze
Ein zur Wohnung gehörender PKW-Parkplatz vor dem Haus steht Ihnen kostenfrei zur Verfügung, weitere Parkplätze gibt es in der Umgebung gegen Gebühr. Fahrradständer befinden sich außen an beiden Hauseingängen. Ein kleiner, abschließbarer Fahrradraum befindet sich zudem im Erdgeschoss des Hauses.

 

Ladesäule für Elektroautos
Im Yachthafen nördlich des Hauses gibt es auch die Möglichkeit, Ihr Elektrofahrzeug wieder aufzuladen. Die Ladestation liegt direkt vor dem roten Hafenmeistergebäude.

 

Barrierefrei

Aufzug im Haus, Haus- und Flurtüren mit aufklappbaren Seitenflügeln für einen breiteren Durchgang, praktisch barrierefreier Weg vom Haus bis zur Strandpromenade, Strandübergänge und Restaurants sowie öffentliche WCs/ Duschen/ Wickelräume an der Südstrandpromenade sind komplett stufenlos ausgebaut.

 

Allergikerfreundlich
Rauchen und Haustiere sind bei uns nicht erlaubt. Alle Materialien in der Wohnung wurden möglichst allergikerfreundlich ausgewählt. Wir geben Ihnen gerne Auskunft im Detail, wenn Sie bestimmte Allergene besonders meiden müssen.

 

Baudaten

49 Quadratmeter große 2-Raum-Wohnung mit Balkon aus dem Baujahr 1972 im 2. Obergeschoss eines dreistöckigen Flachdach-Gebäudes mit Aufzugsanlage. Seit 2015 steht die gesamte Siedlung unter Denkmalschutz.

Ostseenest Fehmarn #2 mit Balkon und Meerblick
Druckversion | Sitemap
© Ostseenest Fehmarn